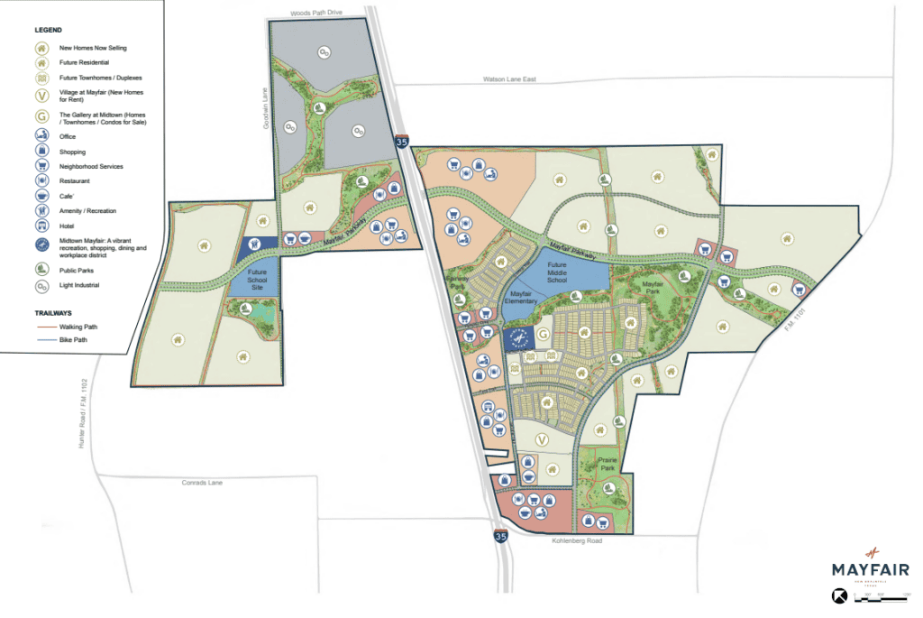
At Mayfair, we believe in the power of vision to drive progress and shape the future. Our Mayfair Map serves as a compass, guiding us through the evolving landscape of our project in New Braunfels, Texas. We embrace the idea that visions are not set in stone but rather a culmination of insights, learnings, and innovative thinking. Our Vision encapsulates our dreams, ambitions, and the collective wisdom of our team. It outlines the path we envision for our project and acts as a strategic guidepost, empowering us to make informed decisions and navigate the complexities of our ever-changing landscape.
