Find Your Home

414 Cleveland Way

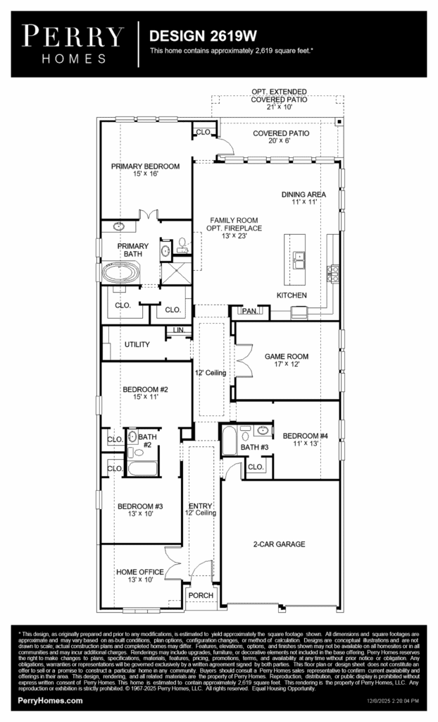
Welcoming front porch opens into an extended entryway adorned with 12-foot ceilings. French doors open into the private home office, located just off the entrance. Down the hallway, you will find the secondary bedrooms, each featuring walk-in closets and a shared full bathroom. Adjacent to the hallway, French doors open into the inviting game room, complete with three large windows. The open family room, featuring a wall of windows and a wood mantel fireplace, seamlessly leads into the designated dining area. The corner kitchen boasts an inviting island with built-in seating and a walk-in pantry. Entering the primary bedroom, you are greeted with ample natural light from the three large windows. French doors lead into the primary suite, showcasing dual vanities, a freestanding tub, a glass enclosed shower, and two walk-in closets. A guest suite with a walk-in closet and private full bathroom is located off the main hallway. The utility room with an included linen closet is conveniently located adjacent to the game room. Outside includes an extended covered backyard patio. Completing the home is a two-car garage. Representative Images. Features and specifications may vary by community.

Home Details

Plan2619W
Square Footage2,619
Beds4
Baths3
Garage2
Stories1
Price$599,900
AvailabilityAvailable: June 1, 2026

Floorplans

Gallery

Virtual Tour

Request More Info