Find Your Home

6029 Edna Point

Scott Felder Homes

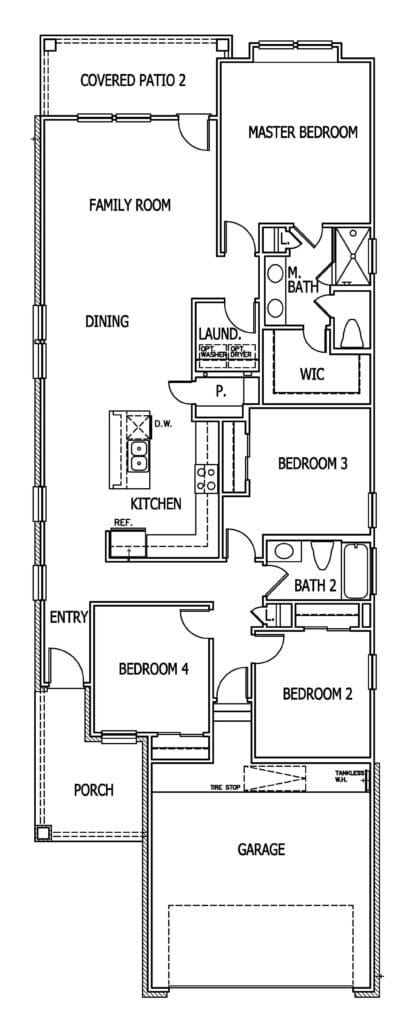
Discover elevated living in the Inverness Plan, a thoughtfully designed one-story home offering 1,669 square feet of modern comfort and efficient design. With four bedrooms and two bathrooms, this home seamlessly blends timeless style with everyday functionality. The home also features $32,351 in carefully selected design options, adding both style and value.The primary suite is privately situated at the rear of the home, creating a peaceful retreat complete with a spa-inspired bathroom. Enjoy year-round comfort in the large enclosed frameless glass shower, while a charming boxed-out window fills the space with natural light and added elegance.At the heart of the home, the island kitchen is ideal for both entertaining and daily living, featuring generous space for meal preparation, casual dining, and gathering with family and friends.Step outside to the covered rear patio, perfect for morning coffee, weekend grilling, or relaxing evenings outdoors. The Inverness Plan offers exceptional space, style, and quality craftsmanshipmaking it an excellent choice for growing families or anyone seeking versatile, high-quality living.Dont miss the opportunity to make this beautiful home yours. Schedule your tour today!

Home Details

Builder Scott Felder Homes
PlanInverness
Square Footage1,669
Beds4
Baths2
Garage2
Stories1
Price$387,990
AvailabilityAvailable Now

Floorplans

Gallery

Contact

Request More Info