Find Your Home

122 Trifle Trail

Scott Felder Homes

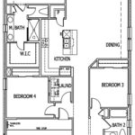
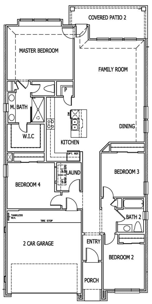
Home Details

Builder Scott Felder Homes
PlanLanport
Square Footage1,803
Beds4
Baths2
Garage2
Stories1
Price$402,990
AvailabilityAvailable: July 1, 2026

Floorplans

Gallery

Contact

Request More Info