Find Your Home

5758 Huron Drive

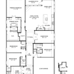
Home office with French doors is set at entry with 12-foot ceiling. Game room with French doors off the extended entry. Family room with a wood mantel fireplace and wall of windows opens to the kitchen and dining area. Kitchen features a 5-burner gas cooktop, a generous island with built-in seating space, and a walk-in pantry. Primary suite includes a bedroom with a wall of windows. Double doors lead to the primary bath with dual vanities, freestanding tub, separate glass-enclosed shower, and oversized walk-in closet. Guest suite with private bath adds to this four-bedroom design. Extended covered backyard patio. Two-car garage. Representative Images. Features and specifications may vary by community.

Home Details

Plan2737W
Square Footage2,737
Beds4
Baths3
Half Baths1
Garage2
Stories1
Price$624,900
AvailabilityAvailable: July 1, 2026

Floorplans

Gallery

Virtual Tour

Request More Info