Find Your Home

6038 Edna Point

Scott Felder Homes

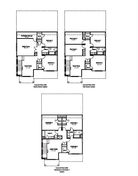
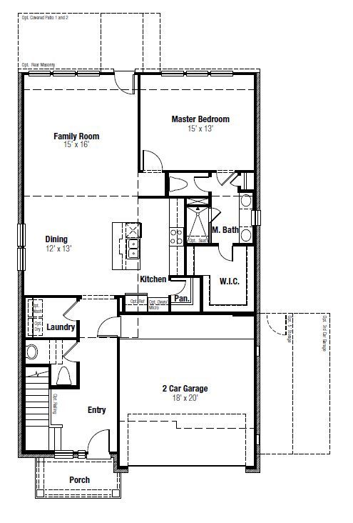
Discover elevated living in the Natalia Plan, a thoughtfully designed two-story home offering 3,092 square feet of spacious, modern comfort. With Three bedrooms and two and a half bathrooms and a loft Game room this home blends timeless style with smart functionality for todays lifestyle. The home also features $26,715 in carefully selected design options, adding both style and value.The primary suite is conveniently located on the main floor, creating a private retreat complete with a spa-inspired bathroom. Unwind in the large enclosed frameless glass shower, designed for year-round comfort, while a charming boxed-out window fills the space with natural light and added elegance.At the heart of the home, the island kitchen is perfect for both everyday living and entertainment, offering generous space for meal prep, casual dining, and gathering with family and friends. Upstairs, a Game room provides endless possibilities for recreation, or family fun.Step outside to enjoy the covered rear patio, ideal for morning coffee, weekend grilling, or relaxing evenings outdoors. The Natalia Plan delivers exceptional space, style, and quality craftsmanshipmaking it an ideal choice for growing families or anyone seeking versatile, high-quality living.Dont miss your opportunity to make this stunning home yours. Schedule your tour today!

Home Details

Builder Scott Felder Homes
PlanNatalia
Square Footage2,063
Beds3
Baths2
Half Baths1
Garage2
Stories2
Price$439,990
AvailabilityAvailable: September 1, 2026

Floorplans

Gallery

Contact

Request More Info